Photography
Architecture
Design
About
STUDIO SPATA
Photography
Architecture
Design
About
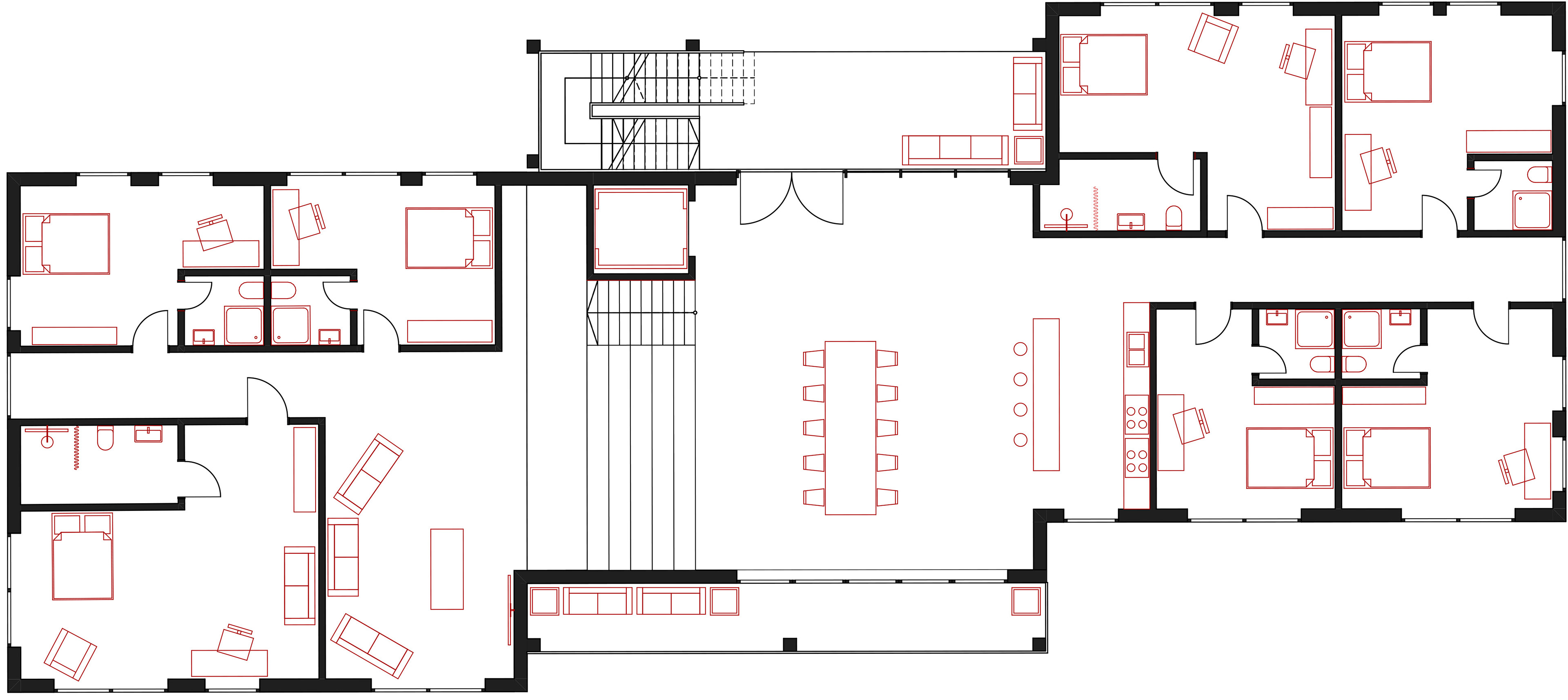
ZusammenWohnen im Gewächshausquartier